Complete installatieset voor wandcloset
- Innovatieve AQUABLADE® spoeltechnologie
- SoftClose mechanisme voor langzame sluiting van de closetzitting
- deze installatieset is ook verkrijgbaar in andere uitvoeringsvarianten van de bedieningsplaat
Bevat
- voorwandinstallatie-element Geberit Duofix (111.300.00.5), met inbouwreservoir Sigma 12 cm
- set voor geluidsdemping (SP 156SET)
- wandcloset Ideal Standard Tesi (T354601)
- wandcloset Ideal Standard Tesi (T352701)
- dual flush bedieningsplaat Geberit Sigma30, chroom mat / chroom (115.883.KN.1)
- de wandankerset wordt niet meegeleverd, deze moet u eventueel apart bij bestellen op onze webshop
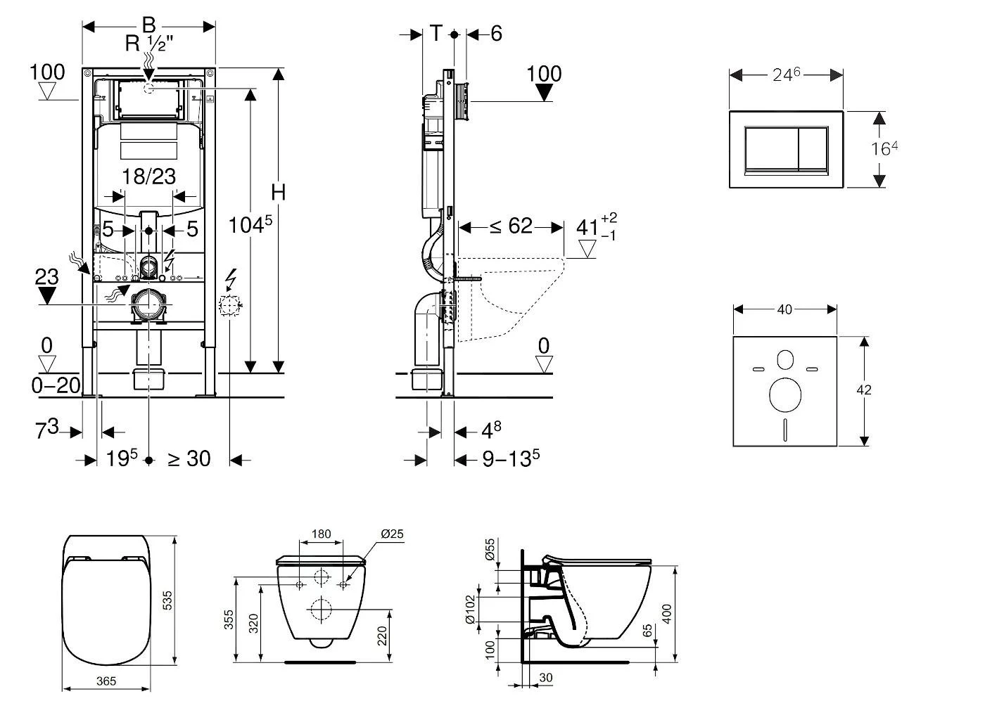
Duoifix montage-element voor wandcloset, met Sigma inbouwreservoir 12 cm
Universeel en snel bruikbaar montage-element voor alle oplossingen op het gebied van droogbouw. Levert een wezenlijk aandeel in het voldoen aan de strengste eisen aan geluidsbescherming en brandveiligheid. Geberit Duofix is bestemd voor montage in lichte gipsplaatwanden of voor installatie aan een gemetselde wand. De montage van het element is buitengewoon snel, met gebruikmaking van slechts vier bevestigingspunten.
Gebruiksdoel
- voor droogbouwconstructies
- voor montage in deelhoge of ruimtehoge voorwandinstallaties
- voor montage in ruimtehoge installatiewanden
- voor montage in deelhoge of ruimtehoge Geberit Duofix systeemwanden
- voor een wandcloset met aansluitmaten conform EN 33:2011
- voor wandcloset met voorsprong tot 62 cm
- voor single flush, dual flush of Start/Stop spoeling
- voor een vloerdikte van 0-20 cm
Kenmerken
- zelfdragend frame, gepoedercoat
- frame met geboorde openingen ø 9 mm voor bevestiging in houten constructies
- frame bestemd en gereed voor steunen bij wc-keramiek met een klein steunoppervlak
- verzinkte steunen
- steunen verstelbaar 0-20 cm
- steunen met antisliplaag
- draaibare voetplaten
- diepte van de voetplaat is geschikt voor montage in UW 50 en UW 75 U-profielen en Geberit Duofix systeemprofielen
- aansluitbocht voor montage zonder gereedschap in verschillende dieptes, instelbereik 45 mm
- bevestiging van de aansluitbocht, geluidsgeïsoleerd
- inbouwreservoir met frontbediening
- inbouwreservoir, geïsoleerd ter voorkoming van condensatie
- fabrieksinstelling maakt direct naspoelen mogelijk
- montage- en onderhoudswerkzaamheden aan inbouwreservoir zonder gereedschap
- wateraansluiting achter of boven in het midden
- afdekking voor ruwe montage voor service-opening beschermt tegen vocht en vuil
- afdekking voor ruwe montage voor service-opening, inkortbaar
- uitgerust met mantelbuis voor toevoerleiding voor de aansluiting van Geberit AquaClean douche-wc’s
- met bevestigingsmogelijkheid voor elektriciteitsaansluiting
Technische gegevens
- stromingsdruk: 10–1000 kPa
- maximale watertemperatuur: 25 °C
- spoelvolume, ingesteld in de fabriek: 6 en 3 l
- groot spoelvolume, instelbereik: 4,5 / 6 / 7,5 l
- klein spoelvolume, instelbereik: 3-4 l
- berekend doorstromingsvolume: 0,11 l/s
- minimale overdruk voor berekend doorstromingsvolume: 50 kPa
De verpakking bevat
- wateraansluiting R 1/2” geschikt voor MF, met geïntegreerde hoekstopkraan en handwiel
- sparingkoker voor service-opening
- 2 beschermdoppen
- aansluitset voor wc, Ø 90 mm
- aansluitbocht 90°, van PE-HD, Ø 90 mm
- overgangsmof van PE-HD, Ø 90/110 mm
- 2 draadstangen M12
Set met wandcloset en ultradunne closetzitting
Wandcloset
- met de innovatieve AQUABLADE® spoeltechnologie
- voor inbouwreservoir met spoelcapaciteit 4,5 l
- installatie: met inbouwmodule in de muur of in een gipsplaat wand
- afmetingen: 360 x 400 x 530 mm
- materiaal: sanitairkeramiek
- verborgen bevestiging
- geglazuurde spoelrand
- diepspoel
Closetzitting
- met SoftClose functie voor langzame sluiting
- kleur: wit
- gemakkelijk afneembaar voor eenvoudig onderhoud
Bedieningsplaat Sigma30, voor dual flush spoeling
- afmetingen: 246 × 164 mm
- materiaal: kunststof
- uitvoering: chroom mat / chroom
- voor de bediening van de spoeling bij Geberit Sigma inbouwreservoirs
- bevestigingsframe
- 2 afstandhouders
- 2 drukstiften
- drukstiften geluidsgeïsoleerd, snel instelbaar zonder gereedschap
Dit product kan bij u zonder originele verpakking geleverd worden. De reden is bescherming van product tegen eventuele schade tijdens transport.































Beoordelingen
Er zijn nog geen beoordelingen.